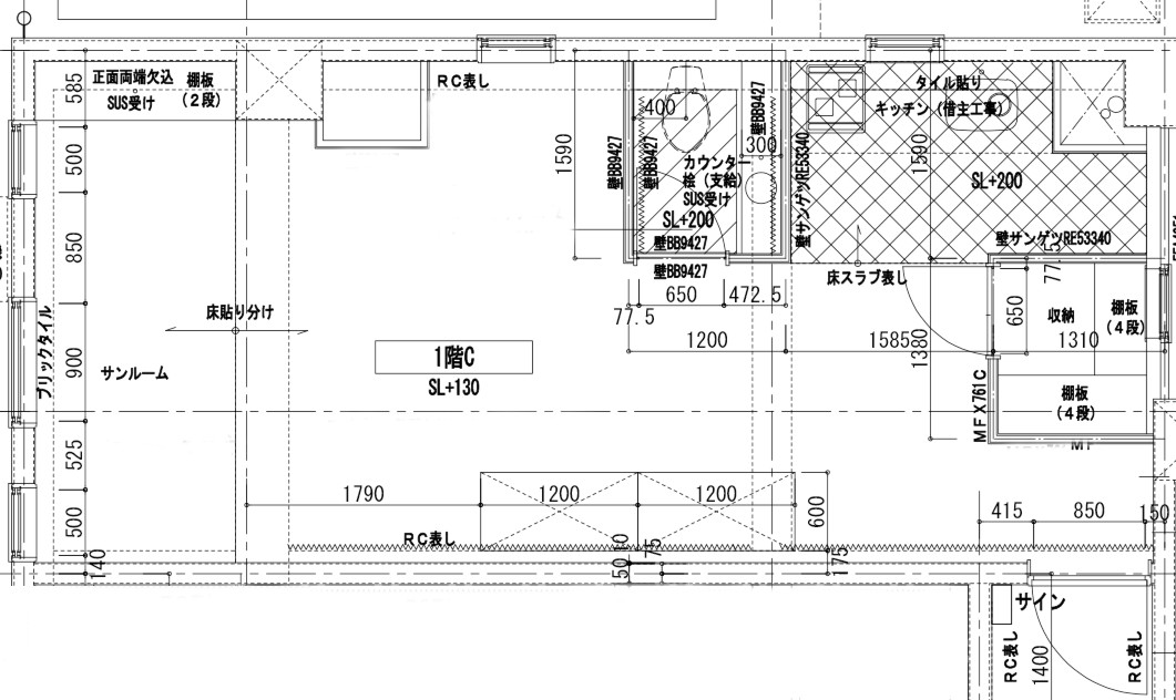
| 1階C号室 (面積:34.86㎡、10.54坪) 坪当単価 (バル含む) 15,174円
貸付34.86㎡(10.55坪) ストックルーム 28.89㎡(8.74坪) 合計 63.77㎡(19.29坪) |
|||
|---|---|---|---|
| 賃 料 | 160,000 円+税 | ご入居時初期費用目安 (貸主及諸経費合計金) |
|
| 共益費 | 不要 | ||
| 保証金 | 不要 | 保証金 | 0 円 |
| 礼 金 | 2ヶ月+税 | 礼 金 | 352,000 円 |
| 水道料 | 実費精算 円 | 保 証 会 社 |
84,000 円 |
|
|
|||
| 仲介料 | 176,000 円 | ||
| 合 計 | (約)612,000 円 | ||
| OLD & NEW 物件概要 | |
|---|---|
| 所在地 | 名古屋市千種区姫池通3-4-2 |
| 交通機関 | 地下鉄覚王山駅2番出口東へ250M 愛知学院大学歯学部病院信号(末盛二)を姫池通北へ150M |
| 建物構造 | RC造地上9階建 |
| 階数戸数 | 20戸(住居使用・営業用使用) |
| 入居者層 | 飲食店・物販・エステサロン・カフェ等 |
| その他入居条件及び営業用途の場合 | |
|
|
| 物件の仕上・設備詳細 | |
| 共用設備 |
|
| 店舗設備 |
|
| インターネット環境 |
|
| キッチン設備 |
|
| バス・トイレ設備 |
|
| 周辺買物機関 | |
| 覚王山フランテ480M、コンビニ250M | |
| 周辺環境 | |
| 城山八幡宮(織田信長の父信秀の築城跡)400M、覚王山日泰寺650M 銀行(三井住友、三菱UFJ、あいち、大垣共立、JA、郵便局) |
|
| 周辺教育機関・学区 | |
| 愛知学院大学末盛キャンパス50M、 名古屋大学1.5km、南山大学2.2km、椙山女学園大学3.1km、 愛知淑徳大学3.2km、中京大学3.8km、名城大学4.9km 学区:名古屋市立田代小学校、名古屋市立城山中学校 |
|
|
|
|








![[営業時間 9:00~19:00(定休日/日曜日)]](images/common2/tit_time.jpg)































