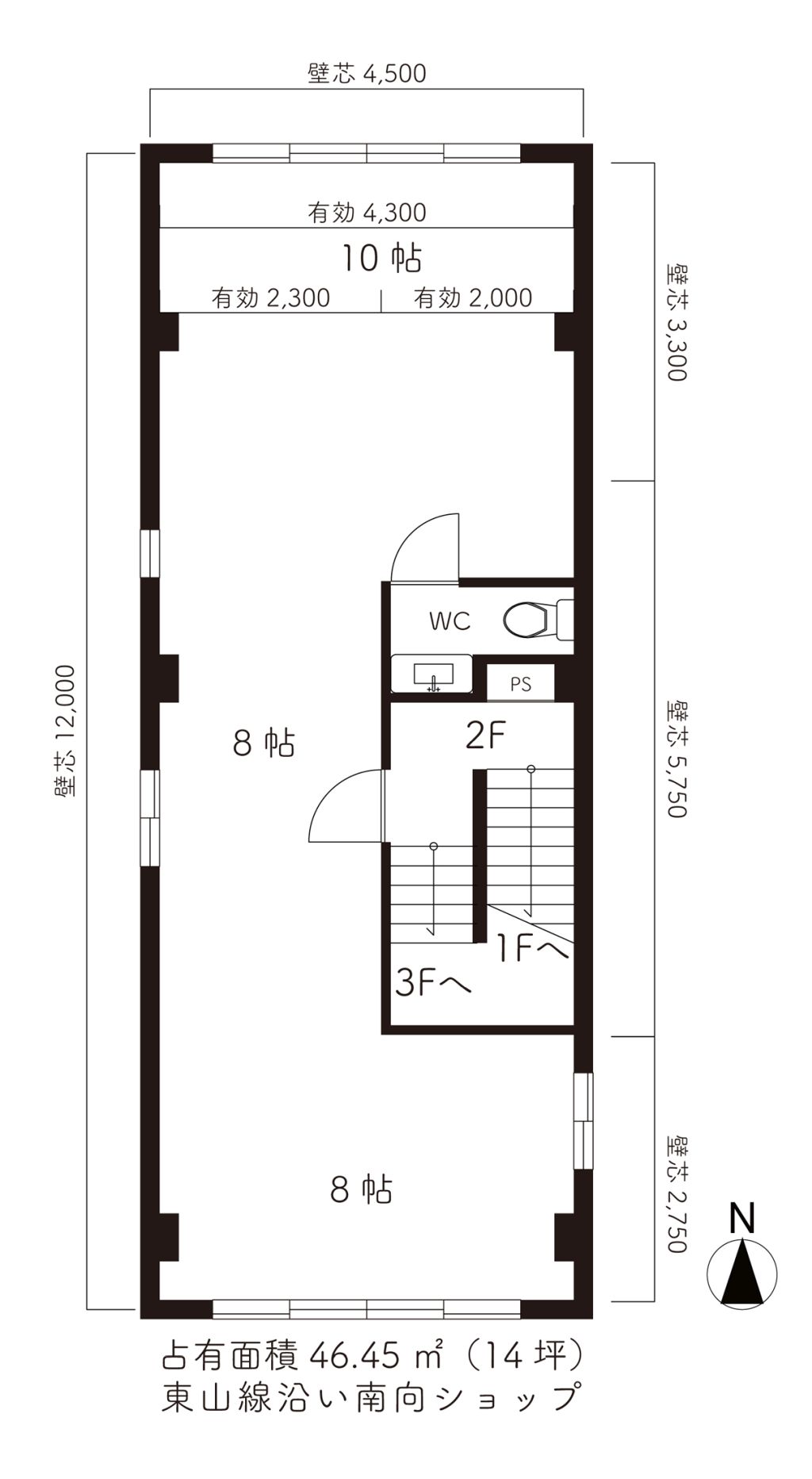
| 2階1号室 (面積:46.45㎡、14.05坪) 坪当単価 9,964円 | |||
|---|---|---|---|
| 賃 料 | 140,000 円+税 | ご入居時初期費用目安 (貸主及諸経費合計金) |
|
| 共益費 | 不要 | ||
| 保証金 | 不要 | 保証金 | 0 円 |
| 礼 金 | 3ヶ月+税 | 礼 金 | 462,000 円 |
| 水道料 | 5,500 円 | 保 証 会 社 |
76,400 円 |
| 仲介料 | 154,000 円 | ||
| 合 計 | (約)692,400 円 | ||
| 第二富士ビル 物件概要 | |
|---|---|
| 所在地 | 名古屋市千種区末盛通4 丁目13番地(末盛四信号前) |
| 交通機関 | 地下鉄東山・名城線本山駅1番出口西へ徒歩2分 |
| 建物構造 | RC地上5階建て(築年月日:1968.13.1) |
| 階数戸数 | 地上5階建て4室(営業用途4室) |
| 入居者層 | 鉄板料理、設計事務所、学習塾 |
| その他入居条件及び営業用途の場合 | |
|
|
| 物件の仕上・設備詳細 | |
| 共用設備 |
|
| 店舗設備 |
|
| インターネット環境 |
|
| キッチン設備 |
|
| バス・トイレ設備 |
|
| 周辺買物機関 | |
| コンビニ100M、イオン・マックスバリュ100M、ミスタードーナッツ120M、ケンタッキー120M、四ツ谷通ショッピングストリート200M、モスバーガー300M、覚王山フランテ980M | |
| 周辺環境 | |
| 城山八幡宮(織田信長の父信秀の築城跡)180M、覚王山日泰寺700M 銀行(三井住友、三菱東京UFJ、名古屋、大垣共立、JA、郵便局) 病院(内科、皮膚科、泌尿器科、歯科)150M、本山派出所400M 東山周辺機関:東山動植物園1.7km、千種スポーツセンター2.0km、千種図書館2.0km、星ヶ丘三越2.3km、星ヶ丘テラス2.3km |
|
| 周辺教育機関・学区 | |
| 愛知学院大学楠元キャンパス(歯学部、薬学部、短大)120M、 名古屋大学1.3km、南山大学2.2km、椙山女学園大学2.4km、 愛知淑徳大学2.5km、中京大学3.0km、名城大学3.2km 学区:名古屋市立見付小学校、名古屋市立城山中学校 |
|
| ご入居者様の声 (第二富士ビル カフェ&バー Yas 様) | |
|
富士不動産さんがオーナーの218HOUSE B1Dで5年間BARを営業し手狭になりましたので、20坪程の店舗を探していた時、第二富士ビル1階店舗は半地下階を手作業で掘削中でした。 全改装工事費の凡そ半額の半改装居抜店舗で、経営初期費用が圧縮でき大変助かりました。
他店舗の20坪のスケルトンからの店舗改装工事費用は2件共見積にて800万円~900万円必要でしたが、第二富士ビルは半改装居抜店舗に付き居抜売買価額は380万円とのことで、メゾネット空間とテラコッタ床と左官壁仕上を気に入り、即決で契約の申し込みをしました。 工事中申込みのサービスとして、ビルオーナーさんに天吊エアコンも取り付けて頂き有難うご座居ました。 店舗オープン前の案内広告へ、ビルオーナーさんのコメント協力もして下さり 大変助かりました。 |
|
|
|
|








![[営業時間 9:00~19:00(定休日/日曜日)]](images/common2/tit_time.jpg)



























